Барнхаус-баня: компактность, стиль и функциональность в едином решении
Проект каркасного дома-бани "Барнхаус 68" — это идеальное сочетание современного жилого пространства и полнофункциональной парной. Размеры 6,3×8,5 метра, гостиная, парная, санузел, терраса, чердачное помещение — всё компактно расположено в едином архитектурном объёме. Деревянный каркас (доска 100×50 и 195×45 мм для стен, 200×50 мм для перекрытий и крыши), свайный фундамент — это лёгкая, экономичная и надежная конструкция. Стиль барнхаус (лаконичность, двускатная крыша, сочетание дерева и металла) делает этот дом современным и привлекательным. Это проект для тех, кто хочет баню и комфортное жилье в одном здании.
Характеристики проекта
| Характеристика | Значение |
|---|---|
| Площадь дома-бани | 68 м² |
| Размеры в плане | 6,3 × 8,5 метров |
| Стиль | Барнхаус |
| Тип конструкции | Каркасный двухуровневый дом-баня |
| Материал наружных стен | Доска 100×50 мм и доска 195×45 мм |
| Материал цокольного перекрытия | Доска 200×50 мм |
| Материал чердачного перекрытия | Доска 150×50 мм |
| Материал крыши/стропильная система | Доска 200×50 мм |
| Форма крыши | Двускатная |
| Фундамент | Свайный |
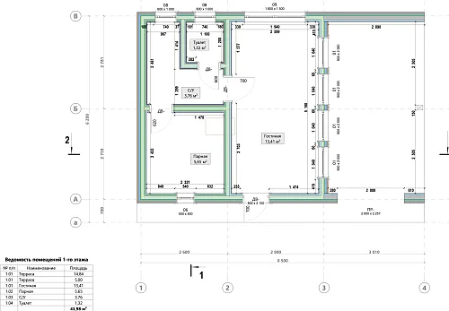
| Помещения | Гостиная, парная, санузел, терраса, чердак |
| Архитектурный стиль | Современный минимализм (барнхаус) |
| Формат доставки | PDF (электронный) или печать |
Что входит в комплект проекта?
✓ Архитектурная часть (АР) — полный план здания с гостиной, парной, санузелом, террасой и чердаком, разрезы с показом высот, фасады (все стороны в стиле барнхаус), экспликация помещений с размерами, план чердачного помещения
✓ Конструктивная часть (КР) — чертежи деревянного каркаса (доска 100×50 и 195×45 мм для стен), узлы соединений, схемы расположения стоек, конструкция цокольного и чердачного перекрытий, конструкция крыши (доска 200×50 мм)
✓ Схема свайного поля с указаниями по монтажу фундамента — планы расположения свай, отметки, глубины, инструкции по установке
✓ 3D визуализация — реалистичные изображения экстерьера дома-бани
✓ Сводный расчет материалов — полная смета пиломатериала (доска 100×50, 195×45, 200×50 и 150×50 мм), утеплителя, кровельного материала и других материалов для строительства и отделки
✓ Ведомость оконных и дверных проемов — спецификация с размерами для заказа окон и дверей
Документация включает:
Полный план здания со всеми помещениями
Конструктивные решения деревянного каркаса (доска 100×50 и 195×45 мм)
Система перекрытий (доска 200×50 и 150×50 мм)
Конструкция крыши (доска 200×50 мм)
Схема свайного фундамента с указаниями по монтажу
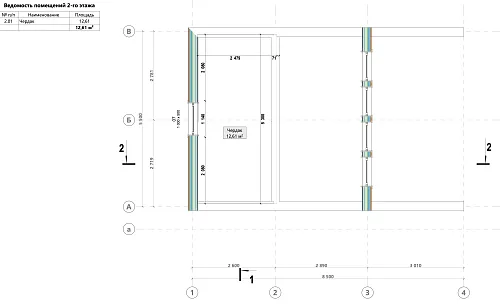
План чердачного помещения
Полная смета материалов с объёмами
Документация готова для:
Получения разрешения на строительство в администрации
Оформления ипотеки на строительство (соответствует требованиям банков)
Самостоятельного или профессионального строительства
Регистрации готового дома-бани в собственность
Планировка: комфорт и здоровье на двух уровнях
Основной уровень:
Гостиная — просторное помещение для отдыха и общения, центр дома
Парная — полнофункциональная сауна для здоровья и закаливания
Санузел — помещение санитарно-гигиенического назначения
Терраса — открытая площадка для отдыха и летних вечеров
Верхний уровень:
Чердачное помещение — дополнительное пространство для хранения, спорта или хобби
5 основных преимуществ проекта
1. Парная и гостиная в одном доме — здоровье и комфорт
Большинство проектов предлагают либо дом, либо баню. Здесь же оба в одном архитектурном решении. После парной можно сразу расслабиться в гостиной. Это удобство и русская традиция в современном исполнении.
2. Компактные размеры 6,3×8,5 м — экономичность и быстрота
Небольшая площадь означает быстрое строительство, минимальные затраты на материалы и отопление. Это доступный проект для тех, кто хочет баню без переинвестиций.
3. Двускатная крыша в стиле барнхаус — современность и красота
Лаконичный дизайн, сочетание дерева и металла делают этот дом-баню архитектурно выразительной. Это не просто функциональное здание, это объект, который украшает участок.
4. Чердачное помещение — дополнительное пространство
Чердак можно использовать для хранения, спорта, мастерской, спального места. Это добавляет функциональности к компактному размеру.
5. Свайный фундамент — готовность к любым участкам
Свайный фундамент позволяет строить на болотистых участках, на склонах, на плохих грунтах. Нет необходимости в дорогостоящей подготовке и выравнивании.
Для кого этот проект?
Семьи, ценящие здоровье и традиции, выберут проект за парную. Это закаливание и здоровье. Парилась в своём доме — это и практично, и полезно.
Владельцы дач и загородных участков построят дом-баню для выходных и летних сезонов. Комфорт и здоровье в одном месте.
Люди с ограниченным бюджетом выберут проект за компактность и экономичность. 68 м² — это доступное и функциональное решение.
Люди, ценящие современный дизайн, оценят стиль барнхаус. Двускатная крыша и лаконичность — это актуально и красиво.
Инвесторы в туристические комплексы выберут проект за уникальность. Дом-баня в стиле барнхаус привлекает туристов и гарантирует спрос.
Конструкция: надежность и оптимизация
Дом-баня спроектирована для надежности и долговечности:
Фундамент: свайный — подходит для любых грунтов, не требует земляных работ
Наружные стены: деревянный каркас (доска 100×50 и 195×45 мм) — надежная конструкция
Цокольное перекрытие: доска 200×50 мм — прочная основа
Чердачное перекрытие: доска 150×50 мм — оптимизация материала
Крыша: двускатная, стропильная система из доски 200×50 мм — эффективное отведение осадков
Терраса: интегрирована в конструкцию дома
Все материалы стандартные, доступны по всей России. Конструкция проверена и надежна.
Почему выбрать именно "Барнхаус 68" дом-баню?
Парная и гостиная в одном доме — редко и практично. Здоровье и комфорт в одном месте.
Компактность 68 м² — экономично и быстро. 6,3×8,5 м — это доступный размер.
Барнхаус стиль — современность и красота. Дом-баня выглядит стильно и актуально.
Чердачное помещение — дополнительное пространство. Гибкость использования.
Свайный фундамент — любые участки и грунты. Готовность к сложным условиям.
🏡 ПОЛУЧИТЬ ПРОЕКТ ДОМА-БАНИ "БАРНХАУС 68"
Мгновенная доставка PDF на почту сразу после оплаты
После оплаты вы получаете на электронную почту архив со всеми файлами: полный план дома-бани с гостиной, парной, санузелом, террасой и чердаком, разрезы, фасады в стиле барнхаус (все стороны), конструктивные чертежи деревянного каркаса (доска 100×50 и 195×45 мм), система перекрытий (доска 200×50 и 150×50 мм), конструкция крыши (доска 200×50 мм), схема свайного фундамента с указаниями по монтажу, детали парной, план чердака, 3D визуализация, полная смета пиломатериала и других материалов. Всё готово для строительства.
Доступные способы оплаты:
Карта (Visa, MasterCard, Mir)
Банковский перевод на счет компании
Рассрочка "Сплит" от Яндекс
Рассрочка "Долями" от Тinькофф
Печать и доставка по России (доп. платеж)
📋 ПОЛУЧИТЬ БЕСПЛАТНУЮ КОНСУЛЬТАЦИЮ
Вопросы по проекту? Как организована парная? Как работает санузел? Какой размер чердака? Как адаптировать под ваш климат? Напишите — ответим за час.
📥 СКАЧАТЬ БЕСПЛАТНЫЙ ОБРАЗЕЦ ПРОЕКТА
Загрузите 6–7 страниц: план дома, разрезы, фасады в стиле барнхаус, детали парной. Посмотрите полноту документации.
☎️ ЗАКАЗАТЬ ОБРАТНЫЙ ЗВОНОК
Хотите обсудить подробно? Оставьте номер — менеджер перезвонит в удобное время и расскажет о проекте.
Контакты:
📧 Email: sale@projectalfa.ru
📱 Телефон: +7 (951) 796-2000
🌐 Сайт: projectalfa.ru
Доставка проекта:
Электронная версия (PDF) — сразу после оплаты на почту
Бумажный вариант — доставка по всей России (доп. платеж за печать и доставку)

















































