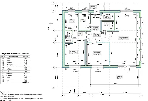
Готовый проект каркасного дома 140 м2
Каркасный дом.| Габаритные размеры здания, м | 9,0х12,5 |
| Форма крыши здания | Двускатная |
| Тип фундамента | Свайный |
| Конструктивная схема | Деревянный каркас |
| Материал Наружних стен | Доска 200х50х6000мм |
| Материал Цокольного перекрытия | Доска 200х50х6000мм |
| Материал Межэтажного перекрытия | - |
| Материал Чердачного перекрытия | Доска 200х50х6000мм |
| Материал Крыши/Стропильной системы | Доска 250х50х6000мм |
| Применение опорных конструкций | Деревянные составные балки; Балки (пакет досок); Колонны (пакет досок) |
Проект содержит все необходимые для строительства и регистрации дома чертежи и таблицы с потребностью в материалах.
Комплектация
ЭП (эскизный проект - 1 штука) + КР (конструктивный раздел - 1 штука) + Раскрой пиломатериала в формате А4 в черно-белом виде. Возможна отправка проекта в электронном виде после приобретения товара (необходимо связаться c продавцом). Это полноценный проект для строительства дома! Готовый проект каркасного дома включает все подробные чертежи эскизного раздела( Для получения разрешение на строительство ) и чертежи конструктивного раздела для строителей. В проекте посчитан весь материал на строительство дома (смета).


























