Готовый Проект Двухэтажного Дома из СИП-Панелей 137 м²
Ваш Идеальный Дом из СИП: Проект 137 м² от "Альфа-Проект"
Мечтаете о собственном доме, но пугают сроки строительства, цены на материалы и "вечные" ремонты? Забудьте об этом! Представляем вам готовый проект двухэтажного дома из СИП-панелей общей площадью 137 м². Это не просто проект, это – ваш билет в комфортную и уютную жизнь, построенную быстро, качественно и… по разумной цене!
Почему Дом из СИП-Панелей – Это Выгодно?
СИП-панели (структурно-изолированные панели) – это современный строительный материал, который обладает целым рядом преимуществ:
Теплоизоляция: Дома из СИП в разы теплее кирпичных или деревянных. Стены из СИП-панелей толщиной 174 мм по теплосбережению эквивалентны кирпичной стене толщиной более 2 метров! Вы будете экономить на отоплении!
Быстрота строительства: Коробка дома из СИП-панелей возводится за считанные недели! Никаких долгих месяцев ожидания и грязи на участке.
Экономичность: Стоимость строительства дома из СИП ниже, чем из традиционных материалов.
Прочность и долговечность: СИП-панели обладают высокой прочностью и устойчивостью к внешним воздействиям.
Экологичность: СИП-панели изготавливаются из экологически чистых материалов.
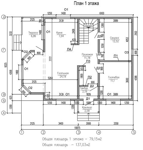
Описание Проекта Дома из СИП 137 м²
Этот проект двухэтажного дома из СИП – идеальный вариант для семьи из 4-5 человек. Продуманная планировка, просторные комнаты, наличие террасы и крыльца – все для комфортной жизни!
Общая площадь: 137 м²
Этажность: 2 этажа
Материал стен: СИП-панели 174 мм
Материал перекрытий: СИП-панели 174 мм
Фундамент: Свайно-винтовой (оптимальный вариант для домов из СИП)
1 этаж:
Просторная кухня-гостиная – сердце дома, где будет собираться вся семья.
Уютная гостевая спальня – для гостей или старших членов семьи.
Санузел.
Прихожая и тамбур – для удобства и чистоты.
Крыльцо и терраса – для отдыха на свежем воздухе.
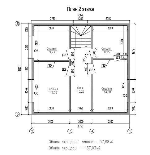
2 этаж:
Три спальни – личное пространство для каждого члена семьи.
Санузел.
Холл.
Что Входит в Полный Проект Дома из СИП?
Вы получаете не просто красивые картинки, а полный комплект документов, необходимых для строительства и регистрации дома:
Эскизный проект: Архитектурные решения, фасады, планы этажей, разрезы.
Конструктивный раздел: Подробные чертежи всех конструктивных элементов дома (стены, перекрытия, кровля).
Проект фундамента: Схема свайного поля, расчет нагрузок.
Смета по количеству материалов.
Ведомость оконных и дверных проемов: Спецификация всех окон и дверей.
Ведомость потребности в пиломатериале: Точный расчет необходимого количества пиломатериалов.
Этот проект полностью подходит для получения ипотеки на строительство, для строительства дома и его последующей регистрации.
Как Купить Проект Дома из СИП 137 м²?
Купить готовый проект дома в "Альфа-Проект" проще простого! Выберите удобный для вас способ:
Онлайн: Оформите заказ прямо на сайте.
По телефону: Позвоните нам по номеру +7(951)796-2000.
По электронной почте: Напишите нам на sale@projectalfa.ru.
Доставка проекта осуществляется сразу после оплаты:
По электронной почте: Бесплатно и мгновенно!
В бумажном виде: По всей России (стоимость доставки рассчитывается отдельно).
Закажите проект дома из СИП 137 м² прямо сейчас и начните строить дом своей мечты!



























