Этот дом идеально подходит для семей из 5 человек, которые ценят комфорт, энергоэффективность и быстрый монтаж. Просторное дом из СИП-панелей 117 м² включает: кухню-гостиную, 4 спальни, 2 холла, 2 санузла, тамбур, топочную, гардеробную, что обеспечивает уединение и уют. Технология SIP-панелей позволяет быстро возвести дом при минимальных расходах, обеспечивая высокую теплоизоляцию и долговечность.
Проект полностью подготовлен для строительства: включает архитектурные и конструктивные чертежи, смету материалов и визуализацию. После оплаты документы станут доступны в формате PDF — и вы сможете начать строительство уже через несколько дней. проект легко адаптируется под любые условия и потребности.
Дом из SIP-панелей обладает отличными теплоизоляционными свойствами. С толщиной стен 174 мм он превосходит по теплоуизоляции большинство традиционных домов. В результате, ваши расходы на отопление и охлаждение заметно снизятся, а затраты на энергию уменьшатся в несколько раз. Это особенно актуально для регионов с холодным климатом. В доме сохраняется приятная тепло- и шумоизоляция, обеспечивающая комфорт при любых погодных условиях. Такой проект позволяет жить в теплом и уютном доме, снижая расходы на содержание.
2. Быстрая реализация и сокращение сроков строительства
За счет использования SIP-панелей, возведение крупногабаритного дома занимает всего 2-3 месяца. Комплект поставляется полностью подготовленным к сборке, что исключает долгие строительные работы. Монтаж осуществляется быстро, даже без тяжелой техники, что позволяет начать использование дома уже через несколько недель после начала строительства. Такой подход идеально подходит для тех, кому важно получить жилье в кратчайшие сроки и без чрезмерных затрат.
3. Легкий и устойчивый фундамент
Это одна из ключевых выгод использования SIP-конструкций. Благодаря низкому весу таких домов, нагрузка на фундамент минимальна. В отличие от традиционных кирпичных или монолитных домов, где требуется массивное основание для поддержки веса всей конструкции, дома из SIP-панелей можно возводить на облегченных типах фундамента.
Например, свайно-винтовой фундамент, который представляет собой металлические или пластиковые сваи, ввинчиваемые в грунт без необходимости рытья котлована или заливки бетонного основания. Такой тип фундамента обладает рядом преимуществ: он быстро монтируется, не требует сложных строительных работ и позволяет сэкономить до 30% затрат по сравнению с традиционными вариантами.
4. Долговечность и безопасность
Технология SIP обеспечивает структуру, устойчивую к гниению, плесени и вредителям. Материалы выдерживают климатические нагрузки и землетрясения, что подтверждается сертификацией и многочисленными тестами. Конструкция не поддается усадке и не трескается со временем, что гарантирует долговечность до 80 лет и более. Дом из SIP-панелей — это надежное, прочное и экологически безопасное жилье.
5. Экологическая безопасность и комфорт
Материалы производства SIP-панелей отвечают высоким стандартам экологической безопасности, не выделяют токсичных веществ и не вызывают аллергии. Пенополистирол и OSB- пластичная защита и безопасны для здоровья всех членов семьи. В составе дома нет вредных веществ, грибка и плесени, что делает его особенно подходящим для семей с детьми или людей с хроническими заболеваниями дыхательных путей. Также материал обладает хорошей звукоизоляцией, обеспечивая тишину и спокойствие внутри.
Если вы ищете семейный дом, где каждый найдет личное пространство и уединение — этот проект для вас. Планировка включает 3–4 спальни и просторную гостиную, что делает дом комфортным для нескольких взрослых и детей. Высокая энергоэффективность позволяет сократить расходы на отопление, а быстрое строительство — реализовать мечту в самые короткие сроки.
Профессионалы, ценящие скорость и качество
Если важно получить жилой дом максимально быстро и с гарантией качества — этот проект из SIP-панелей создан для вас. Монтажные работы занимают минимум времени, а конструкция устойчива к внешним воздействиям. Вы сможете переехать уже через пару месяцев после запуска строительных работ и наслаждаться комфортом.
Обладатели участков с сложным рельефом или грунтами
Этот проект отлично подойдет для участка со сложной геологией или нестабильным грунтом. Легкий вес SIP-конструкции позволяет использовать облегченные фундаменты, что сокращает стоимость и ускоряет монтаж. Такой дом будет надежно стоять даже на сложных участках, не требуя дорогих фундаментных решений.
Инвесторский сегмент и застройщики
Если планируется строительство для сдачи в аренду или продажи, этот проект предлагает быструю окупаемость в связи с короткими сроками строительства. Высокая энергоэффективность и современный дизайн сделают его привлекательным для разных категорий покупателей.
Люди, ориентированные на экологичность и здоровье
Если для вас важны экологичные материалы и здоровье вашей семьи, этот дом — идеальный выбор. SIP-панели выпускаются из экологичных компонентов и соответствуют нормативам по безопасности. В таком доме создается здоровый и безопасный микроклимат, что особенно ценно для аллергиков, малышей и пожилых.
Да, проект адаптируется под пожелания и особенности участка. Мы можем изменить расположение перегородок, добавить или убрать помещения, изменить конфигурацию кровли.
Подходит ли проект для ипотеки?
Да, проект полностью готов для оформления ипотечного кредита. Все необходимые чертежи и спецификации соответствуют требованиям банков.
Можно ли адаптировать под другой фундамент?
Да, проект легко адаптируется. Для домов из СИП-панелей подходят свайно-винтовой, мелкозаглубленный ленточный, УШП и плитный фундаменты.
Подходит ли дом из СИП-панелей для постоянного проживания?
Да, это теплый капитальный дом для круглогодичного проживания. СИП-панели обеспечивают превосходную теплоизоляцию — такой дом теплее кирпичного и требует минимальных затрат на отопление.
Как быстро можно построить дом по этому проекту?
Коробка дома из СИП-панелей возводится за 2-4 недели. Под ключ с отделкой и коммуникациями — за 2-4 месяца в зависимости от сложности.
Нужна ли дополнительная теплоизоляция стен?
Нет, СИП-панели толщиной 174 мм имеют сопротивление теплопередаче R=4.4 м²·°C/Вт, что превышает требования СНиП для большинства регионов России. Дополнительное утепление не требуется.
🏡 КУПИТЬ ПРОЕКТ
Мгновенная доставка PDF на почту сразу после оплаты
После оплаты вы получите на электронную почту архив со всеми файлами проекта: планы, разрезы, фасады, визуализация, количество материала. Можно сразу показать подрядчику, считать материалы и начать строить.
Доступные способы оплаты:
Есть вопросы? Какой фундамент подойдет вашему участку? Можно ли изменить лофт? Напишите — ответим в течение часа.
📥 СКАЧАТЬ БЕСПЛАТНЫЙ ОБРАЗЕЦ
Скачайте 5–7 страниц из проекта: план первого этажа, фасад и один разрез. Так вы сразу поймете формат документации и качество работы.
☎ЗАКАЗАТЬ ОБРАТНЫЙ ЗВОНОК
Предпочитаете говорить по телефону? Оставьте номер — менеджер перезвонит в удобное время.
Контакты:
📧 Email: sale@projectalfa.ru
📱 Телефон: +7 (951) 796-2000
🌐 Сайт: projectalfa.ru
Проект полностью подготовлен для строительства: включает архитектурные и конструктивные чертежи, смету материалов и визуализацию. После оплаты документы станут доступны в формате PDF — и вы сможете начать строительство уже через несколько дней. проект легко адаптируется под любые условия и потребности.
Характеристики проекта
| Характеристика | Значение |
| Площадь дома | 117 м² |
| Спален | 4 |
| Этажей | 1 |
| Крыльцо | 1 |
| Конструкция | Дом из СИП-панелей (SIP) |
| Фундамент | Свайный |
| Материал несущих стен | СИП-панели толщиной 174 мм |
| Перекрытия | СИП-панели толщиной 174 мм |
| Кровля | Двускатная кровля из SIP |
| Формат доставки | PDF (электронный) или печать |
Что входит в комплект проекта
- Эскизная часть (ЭП планы): полы, фасады, разрезы, визуализация
- Конструктивная часть: чертежи монтажа СИП-панелей, схемы перекрытий, кровли, узлы соединения панелей, обвязки, фундамента
- Смета материалов: полный расчет СИП-панелей, пиломатериалов
- Фундамент: расчет фундамента под легкую подсветку из СИП-панелей, схема монтажа свайного поля
- Спецификация SIP-панелей: размеры и количество панели для стен, перекрытий, кровли
Готовые документы:
- Разрешение на строительство
- Оформление ипотеки
- Производство самостоятельно или с подрядчиком
- Регистрация дома в собственности.
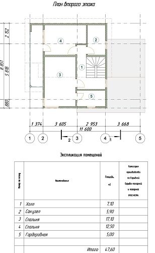
Планировка
1 этаж- Тамбур
- Холл
- Гостиная
- Кухня
- Санузел
- Топочная
- 2 спальни
- Холл
- Санузел
- 2 спальни
- Гардеробная
Преимущества проекта
1. Высокая теплоизоляция и энергоэффективностьДом из SIP-панелей обладает отличными теплоизоляционными свойствами. С толщиной стен 174 мм он превосходит по теплоуизоляции большинство традиционных домов. В результате, ваши расходы на отопление и охлаждение заметно снизятся, а затраты на энергию уменьшатся в несколько раз. Это особенно актуально для регионов с холодным климатом. В доме сохраняется приятная тепло- и шумоизоляция, обеспечивающая комфорт при любых погодных условиях. Такой проект позволяет жить в теплом и уютном доме, снижая расходы на содержание.
2. Быстрая реализация и сокращение сроков строительства
За счет использования SIP-панелей, возведение крупногабаритного дома занимает всего 2-3 месяца. Комплект поставляется полностью подготовленным к сборке, что исключает долгие строительные работы. Монтаж осуществляется быстро, даже без тяжелой техники, что позволяет начать использование дома уже через несколько недель после начала строительства. Такой подход идеально подходит для тех, кому важно получить жилье в кратчайшие сроки и без чрезмерных затрат.
3. Легкий и устойчивый фундамент
Это одна из ключевых выгод использования SIP-конструкций. Благодаря низкому весу таких домов, нагрузка на фундамент минимальна. В отличие от традиционных кирпичных или монолитных домов, где требуется массивное основание для поддержки веса всей конструкции, дома из SIP-панелей можно возводить на облегченных типах фундамента.
Например, свайно-винтовой фундамент, который представляет собой металлические или пластиковые сваи, ввинчиваемые в грунт без необходимости рытья котлована или заливки бетонного основания. Такой тип фундамента обладает рядом преимуществ: он быстро монтируется, не требует сложных строительных работ и позволяет сэкономить до 30% затрат по сравнению с традиционными вариантами.
4. Долговечность и безопасность
Технология SIP обеспечивает структуру, устойчивую к гниению, плесени и вредителям. Материалы выдерживают климатические нагрузки и землетрясения, что подтверждается сертификацией и многочисленными тестами. Конструкция не поддается усадке и не трескается со временем, что гарантирует долговечность до 80 лет и более. Дом из SIP-панелей — это надежное, прочное и экологически безопасное жилье.
5. Экологическая безопасность и комфорт
Материалы производства SIP-панелей отвечают высоким стандартам экологической безопасности, не выделяют токсичных веществ и не вызывают аллергии. Пенополистирол и OSB- пластичная защита и безопасны для здоровья всех членов семьи. В составе дома нет вредных веществ, грибка и плесени, что делает его особенно подходящим для семей с детьми или людей с хроническими заболеваниями дыхательных путей. Также материал обладает хорошей звукоизоляцией, обеспечивая тишину и спокойствие внутри.
Для кого подходит
Семьи с детьми и любители просторного жильяЕсли вы ищете семейный дом, где каждый найдет личное пространство и уединение — этот проект для вас. Планировка включает 3–4 спальни и просторную гостиную, что делает дом комфортным для нескольких взрослых и детей. Высокая энергоэффективность позволяет сократить расходы на отопление, а быстрое строительство — реализовать мечту в самые короткие сроки.
Профессионалы, ценящие скорость и качество
Если важно получить жилой дом максимально быстро и с гарантией качества — этот проект из SIP-панелей создан для вас. Монтажные работы занимают минимум времени, а конструкция устойчива к внешним воздействиям. Вы сможете переехать уже через пару месяцев после запуска строительных работ и наслаждаться комфортом.
Обладатели участков с сложным рельефом или грунтами
Этот проект отлично подойдет для участка со сложной геологией или нестабильным грунтом. Легкий вес SIP-конструкции позволяет использовать облегченные фундаменты, что сокращает стоимость и ускоряет монтаж. Такой дом будет надежно стоять даже на сложных участках, не требуя дорогих фундаментных решений.
Инвесторский сегмент и застройщики
Если планируется строительство для сдачи в аренду или продажи, этот проект предлагает быструю окупаемость в связи с короткими сроками строительства. Высокая энергоэффективность и современный дизайн сделают его привлекательным для разных категорий покупателей.
Люди, ориентированные на экологичность и здоровье
Если для вас важны экологичные материалы и здоровье вашей семьи, этот дом — идеальный выбор. SIP-панели выпускаются из экологичных компонентов и соответствуют нормативам по безопасности. В таком доме создается здоровый и безопасный микроклимат, что особенно ценно для аллергиков, малышей и пожилых.
Материалы и конструкции
- Несущие стены: СИП-панели 174 мм (OSB-3 + пенополистирол ПСБ-С25Ф)
- Перегородки: каркасные с комплектацией минеральной ватой
- Перекрытия: СИП-панели 224 мм
- Кровля: СИП-панели 224 мм
- Фундамент: свайно-винтовой
Вопросы и ответы:
Можно ли изменить планировку?Да, проект адаптируется под пожелания и особенности участка. Мы можем изменить расположение перегородок, добавить или убрать помещения, изменить конфигурацию кровли.
Подходит ли проект для ипотеки?
Да, проект полностью готов для оформления ипотечного кредита. Все необходимые чертежи и спецификации соответствуют требованиям банков.
Можно ли адаптировать под другой фундамент?
Да, проект легко адаптируется. Для домов из СИП-панелей подходят свайно-винтовой, мелкозаглубленный ленточный, УШП и плитный фундаменты.
Подходит ли дом из СИП-панелей для постоянного проживания?
Да, это теплый капитальный дом для круглогодичного проживания. СИП-панели обеспечивают превосходную теплоизоляцию — такой дом теплее кирпичного и требует минимальных затрат на отопление.
Как быстро можно построить дом по этому проекту?
Коробка дома из СИП-панелей возводится за 2-4 недели. Под ключ с отделкой и коммуникациями — за 2-4 месяца в зависимости от сложности.
Нужна ли дополнительная теплоизоляция стен?
Нет, СИП-панели толщиной 174 мм имеют сопротивление теплопередаче R=4.4 м²·°C/Вт, что превышает требования СНиП для большинства регионов России. Дополнительное утепление не требуется.
🏡 КУПИТЬ ПРОЕКТ
Мгновенная доставка PDF на почту сразу после оплаты
После оплаты вы получите на электронную почту архив со всеми файлами проекта: планы, разрезы, фасады, визуализация, количество материала. Можно сразу показать подрядчику, считать материалы и начать строить.
Доступные способы оплаты:
- Карта (Visa, MasterCard, МИР)
- Рассрочка "Долями", "Сплит"
- Банковский перевод
- Печать и доставка по России (доп. платеж)
Есть вопросы? Какой фундамент подойдет вашему участку? Можно ли изменить лофт? Напишите — ответим в течение часа.
📥 СКАЧАТЬ БЕСПЛАТНЫЙ ОБРАЗЕЦ
Скачайте 5–7 страниц из проекта: план первого этажа, фасад и один разрез. Так вы сразу поймете формат документации и качество работы.
☎ЗАКАЗАТЬ ОБРАТНЫЙ ЗВОНОК
Предпочитаете говорить по телефону? Оставьте номер — менеджер перезвонит в удобное время.
Контакты:
📧 Email: sale@projectalfa.ru
📱 Телефон: +7 (951) 796-2000
🌐 Сайт: projectalfa.ru

























