Готовый проект одноэтажного каркасного дома 101,9 м² с террасами
Ищете просторный и уютный дом для всей семьи? Представляем вам проект одноэтажного каркасного дома площадью 101,9 м² – идеальное сочетание функциональности, комфорта и стиля! Этот дом – как чистый холст, на котором вы сможете нарисовать свою собственную историю счастливой жизни. А две террасы общей площадью 37 м² станут вашим любимым местом для отдыха на свежем воздухе!
Каркасный дом 101,9 м²: Ваш дом – ваша крепость!
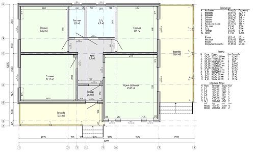
Простор и свобода: Общая площадь дома – 101,9 м², размеры – 11,65х8,15 метров. Этого достаточно, чтобы с комфортом разместилась большая семья. Три спальни, просторная кухня-гостиная, санузел, холл, тамбур и даже котельная – здесь есть все, что нужно для счастливой жизни!
Две террасы – двойное удовольствие! Две террасы общей площадью 37 м² – это настоящий подарок для любителей отдыха на свежем воздухе. Утренний кофе с видом на восход, вечерние посиделки с друзьями, барбекю с семьей – выбирайте свой сценарий! Террасы – это как продолжение дома, только на улице.
Каркасная технология – это быстро и выгодно! Каркасный дом – это современное решение, которое позволяет построить дом в кратчайшие сроки и сэкономить бюджет. Каркас – это как скелет дома, прочный и надежный, а утеплитель и отделка – это его "одежда", которая делает дом теплым и красивым.
Полный пакет документов – и никаких хлопот! Проект каркасного дома 101,9 м² включает в себя:
Эскизный проект – для визуализации вашей мечты.
Конструктивный раздел – подробные чертежи для строителей.
Проект фундамента – для надежного основания.
Смету материалов – для контроля расходов.
Ведомость оконных и дверных проемов – для точности.
Расчет потребности в пиломатериале – для экономии.
С этим проектом вы легко получите ипотеку, разрешение на строительство и оформите дом в собственность.
Купить проект каркасного дома 101,9 м²: Проще простого!
Готовый проект одноэтажного каркасного дома 101,9 м² доступен для покупки:
Онлайн на сайте: Оформляйте заказ в пару кликов!
По телефону: +7(951)796-2000 – наши менеджеры ответят на все ваши вопросы.
По электронной почте: sale@projectalfa.ru – пишите нам, и мы оперативно свяжемся с вами!
Доставка: Мгновенно после оплаты на вашу электронную почту. Возможна доставка в бумажном виде (с доплатой) по всей России.























