Одноэтажный дом из СИП-панелей 56 м²: Компактный, но вместительный!
Ищете проект небольшого, но современного и функционального дома? Проект дома из СИП-панелей 56 м² от "Альфа-проект" – это то, что вам нужно! Этот одноэтажный дом с односкатной крышей – идеальный вариант для дачи, гостевого домика, небольшой семьи или стильного холостяцкого жилья. Он сочетает в себе лаконичный дизайн, продуманную планировку и все преимущества СИП-технологии.
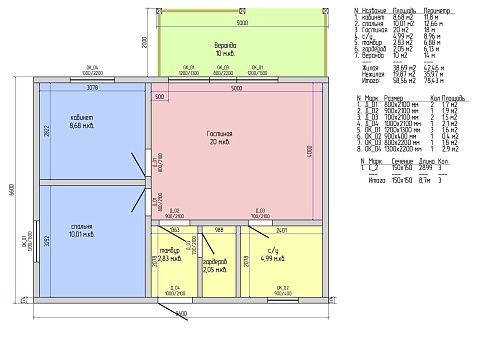
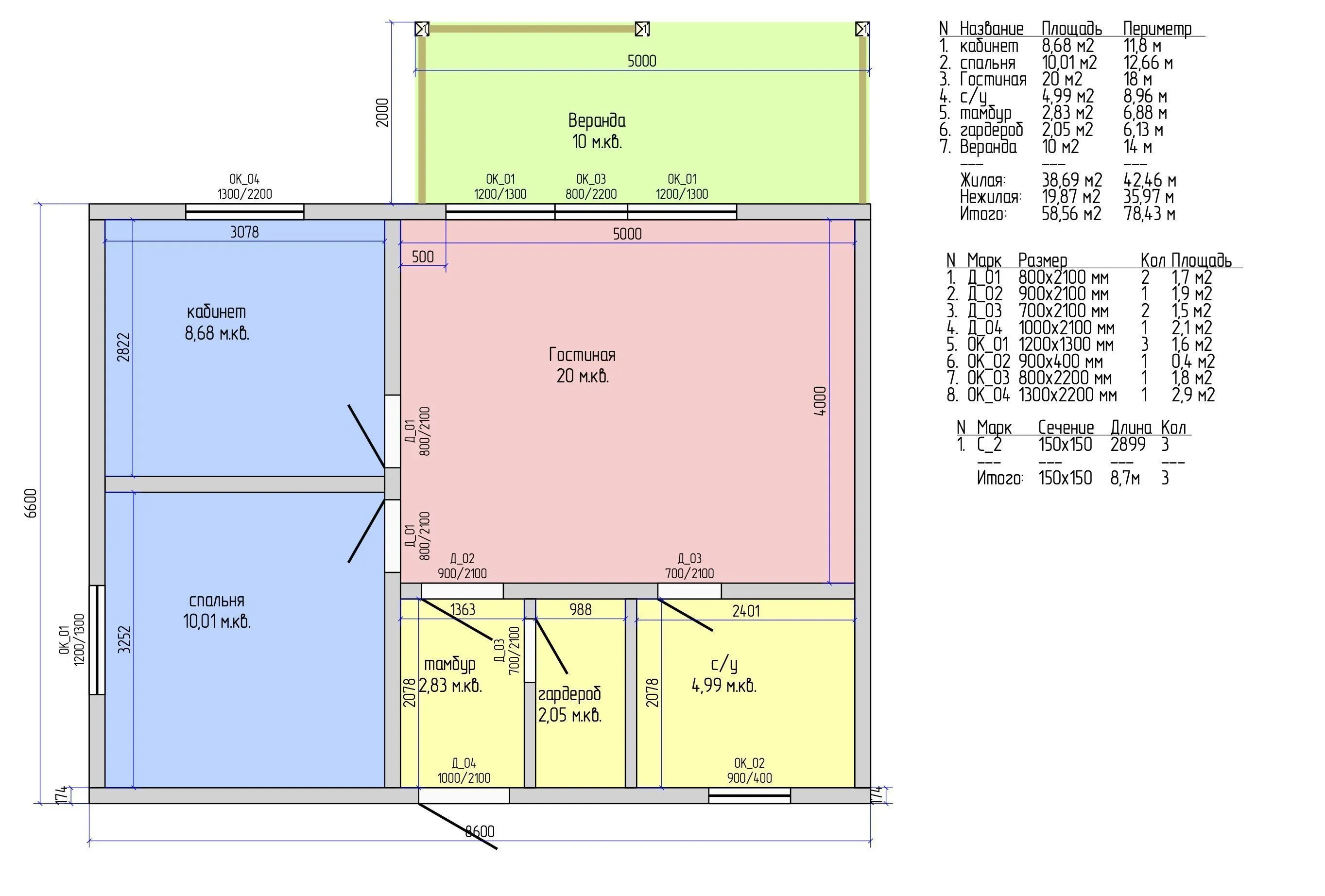
"Дом 56 м²": Планировка, которая удивляет
Несмотря на компактные размеры, проект дома из СИП 56 м² предлагает удивительно функциональную планировку. В нем есть все необходимое для комфортной жизни:
Гостиная: Просторное помещение для отдыха и приема гостей.
Кабинет: Уединенное место для работы или учебы.
Спальня: Уютная комната для сна.
Тамбур: Защищает дом от холода и грязи.
Гардероб: Место для хранения одежды и обуви.
Санузел: Все удобства под рукой.
Веранда: Отличное место для отдыха на свежем воздухе.
Односкатная крыша придает дому современный вид и позволяет эффективно использовать пространство под кровлей.
СИП-панели: Тепло, быстро, надежно
Дом 56 м² построен по СИП-технологии. А это значит:
Тепло зимой, прохладно летом: СИП-панели (толщина стен – 174 мм, перекрытий – 224 мм!) обладают отличными теплоизоляционными свойствами. Вы будете экономить на отоплении и кондиционировании.
Быстрое строительство: Дом из СИП-панелей возводится за считанные недели – никаких долгих месяцев ожидания!
Надежность и долговечность: СИП-панели – это прочный и долговечный материал, который не боится влаги, гниения, плесени и насекомых.
Экологичность: СИП-панели изготавливаются из безопасных для здоровья материалов.
Доступная цена: СИП-технология – одна из самых выгодных на сегодняшний день.
Энергоэффективность: Существенная экономия ваших средств.
В проекте предусмотрен свайно-винтовой фундамент, который идеально подходит для СИП-домов и позволяет строить на любых грунтах.
Полный проект: Все, что нужно для строительства и регистрации
Проект дома из СИП 56 м² – это не просто красивые картинки, а полный комплект документов, необходимых для строительства и регистрации дома:
Эскизный проект: Планы, фасады, разрезы, 3D-визуализация – вы увидите, как будет выглядеть ваш будущий дом.
Конструктивный раздел: Подробные чертежи всех конструктивных элементов (СИП-панели, перекрытия, кровля).
Фундамент: Расчет и чертежи свайно-винтового фундамента.
Смета: Полный расчет количества и стоимости материалов.
Ведомость оконных и дверных проемов: Спецификация окон и дверей.
Потребность в пиломатериале: Расчет необходимого количества пиломатериалов.
С этим проектом вы сможете:
Получить разрешение на строительство.
Построить дом своими руками или с помощью строительной бригады.
Заказать строительство "под ключ".
Получить ипотеку на строительство.
Зарегистрировать дом в собственность.
Купить проект дома 56 м²: Легко и выгодно!
Купить готовый проект дома из СИП 56 м² можно:
Онлайн на сайте. Добавьте проект в корзину и оформите заказ.
По телефону: +7(951)796-2000.
По электронной почте: sale@projectalfa.ru.
Доставка проекта:
Мгновенно: В электронном виде (PDF) на вашу электронную почту сразу после оплаты.
По всей России: В бумажном виде (с доплатой за печать и доставку).
Закажите проект дома из СИП 56 м² прямо сейчас! И пусть у вас появится свой стильный, теплый и уютный дом!

















